
PROYECTOS ELÉCTRICOS
• Diseño y desarrollo de Proyectos Eléctricos.
• Proyectos de Automatización y control industrial.
• Mantenimiento y normalización eléctrica BT según DS8/2019.
• Diseño y desarrollo de Sistemas de Puesta a Tierra y SEV.
• Inspección Técnica de Obras y asesoría técnica especializada de Ingenieros Eléctricos SEC Clase A.

ESTUDIOS ELÉCTRICOS
• Estudios geoeléctricos para cálculo de resistividad de terreno.
• Medición de Resistencia de Puesta a Tierra.
• Inspección y ensayos de comprobación RIC19 de DS 08/2019.
• Análisis estadístico para mantenimiento predictivo y correctivo.
• Medición de variables de tensión, corrientes, factor de potencia, presencia de armónicos y transitorios en la red, iluminación, entre otros.

INFRAESTRUCTURA DE REDES
Hoy más que nunca, la conectividad es un indiscutible protagonista apoyado por las nuevas TI, nuestro compromiso es apoyar su gestión mediante:
• Proyectos de redes cableadas Cat6 y fibra óptica.
• Proyectos de redes inalámbricas, AP locales y de largo alcance.
• Mantenimiento de infraestructura de redes, diseño, planificación de organización y canalizado de cuartos, racks, equipos, estructurado horizontal, Backbone, etc.
• Auditoría, análisis y planimetría de topología física y lógica.

EFICIENCIA ENERGÉTICA
• 50001: 2018. Asesoría en implementación de IDEns: Una correcta definición de indicadores para su SGEn, son la base para la evaluación del desempeño energético.
• Análisis de calidad de energía: La Medición puntual o temporal de parámetros eléctricos que incluyen armónicos, transcientes, factor de potencia y balances.
• Monitoreo, registro y análisis: Contamos con equipos y software de diseño propio para la adquisición permanente de datos de su planta o dependencias, por sistema SCADA y DASH, los que permiten el modelamiento matemático y pronóstico de la LBE y posterior análisis de ahorro en similar período.

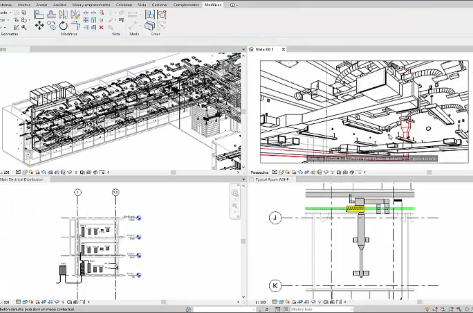
MODELAMIENTO BIM DE INSTALACIONES
El avance tecnológico, ha permitido dar un paso más, con el arribo de BIM (Building Information Modeling), sistema colaborativo para la concepción y gestión de obras civiles. Sus dimensiones centralizadas geométricas, implican coordinación y análisis de diferentes especialidades, permitiendo mayor productividad, calidad, beneficio y predictibilidad en el ciclo. En Nabloitec desarrollamos el modelamiento BIM integrando los siguientes servicios:
• Modelamiento de instalaciones eléctricas 3D bajo metodología BIM.